上海达夯机械科技有限公司

咨询热线

021-64383010

产品中心

上海达夯机械科技有限公司

联系人:蔡经理

手机:186 1622 7309

电话:021-64383010

邮箱:18616227309@126.com

工厂地址:上海市金山区朱泾镇南横街4号4幢

办公地址:上海市徐汇区浦汇塘路11号1302室

江苏分公司地址:无锡市长江北路280号新区哥伦布广场写字楼A座2107室

AB系列纵走式机械手

发布日期:2019-10-10 14:44:00 访问次数:1465

AB系列纵走式机械手
AB系列纵走式机械手适用于50~450吨的各型卧式射出成型机的成品取出,安装方向与传统的横走式不同,是将成品与料头取出放置于射出机尾端,可以节省 射出机的安装空间。有单截式及双截式;均可增加副臂用于三片模,同时夹成品与料头,上下行程从600~1000mm。安装可节省射出机安装空间 30~40%,更充分的利用厂房;并可增加产能20~30%,降低产品的不良率,保障操作人员的安全性,减少人工,精准的控制生产量,减少浪费。

 

特点 

 采用高性能AC伺服马达驱动,可取出成品深度大之产品,取出产品多样化;超高速的取出时间大幅提升生产的效率。
 高刚性3D结构设计,结构稳定震动小耐久寿命长。
 使用高精度高速专用的直线滑轨,耐磨损、耐热、寿命长不变形。
 手臂结构采用高刚性铝挤型梁,品质轻、高刚性,配合皮带倍速机构保证取出时间。
 T型齿形钢丝PU皮带传动,稳定性佳,定位精准重现性达0.15mm。

 

一般规格

                电源
Power Source
                工作气压
Working Pressure
                最大容许气压
Max. Allowed Pressure
                驱动方式
Dirve  System
                侧姿
Swivel
                控制系统
Control System
1 or 3 AC220V±10V
50/60Hz
5Kgf/cm2
0.49Mpa
8Kgf/cm2
0.8Mpa
Y:AC Servp Motor
X.Z Pneumatic Cyliner
90° Fixed
Pneumatic
微电脑控制
Microcomputer control


 

主要规格 

    机型
    Model
                AB 550 ID/IS/WD/WS                 AB 650 ID/IS/WD/WS                 AB 750 ID/IS/WD/WS
                    电源容量
    Power capacity
1 1 1
                    适用成型机(Ton)
    Recommended I.M.M
50-150 100-250 250-450
                    横行行程(mm)
    Traverse stroke
2000(2500) 3000(3500) 4000(4500)
                    横行驱动方式
    Traverse driven
Y AC Sertio Motor or Inverter Motor Optionl
X.Z AC Sertio Motor or Pneumatic Cylinder
                    引拔行程(mm)
    Crosswise stroke
P:150  R:100 P:300 R:100 P:400 R:100
                    上下行程(mm)
    Vertical srtoke
650 850 1000
                    最大负荷(kg)
    Max loading
3 3 5
                    取出时间(sec)
    Dry take out time
2 2.5 3
                    全循环时间(sec)
    Dry cycle time
10 12 14
                    空气消耗量(NI/cycle)
    Air consumption
21 25 30
                    净重(kg)
    Net weight
320 390 460

()表示选购规格,“P”成品臂,“R:料头臂,I:单截式,W:双截式,D:成品臂+料头臂,S:成品臂,
Y3:3轴伺服控制,Y5:5轴伺服控制
Denoted: "P" :product arm     "R" :runner arm    I: single stage    W: telescopic type   D: double arm   S: product arm
Y3: AC servo motor driven on 3 axis    Y5: AC servo motor driven on 5 axis

 

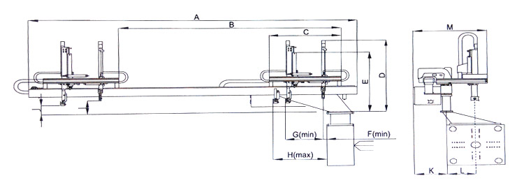
主要外形尺寸

                Model                 A                 B                 C                 D                 E                 F                 G                 H                 I                 J                 K                 L                 M
AB650ID/S 2800 2000 680 1492(1200) 1230(910) 50 130(190) 600 220(185) 270(220) 420 390±50 1000
AB850ID/WD/S 3900 3000 780 1650(1000) 1430(1000) 50 130(190) 700 220(180) 270(220) 420 420±50 1000
AB1000WD/S 5200 4000 980 1400 1100 50 190 900 220(185) 270(220) 420 65±50 1250

在线QQ

联系手机186 1622 7309

联系电话021-64383010